Großzügiges Einfamilienhaus mit riesigem Grundstück und Ausbaureserve in Norderstedt
Objektart
Adresse
Objektdaten
Informationen
Ausstattung
Details
Bei der angebotenen Immobilie handelt es sich um ein freistehendes Einfamilienhaus mit Keller und Garage auf einem außergewöhnlich großzügigen Grundstück.
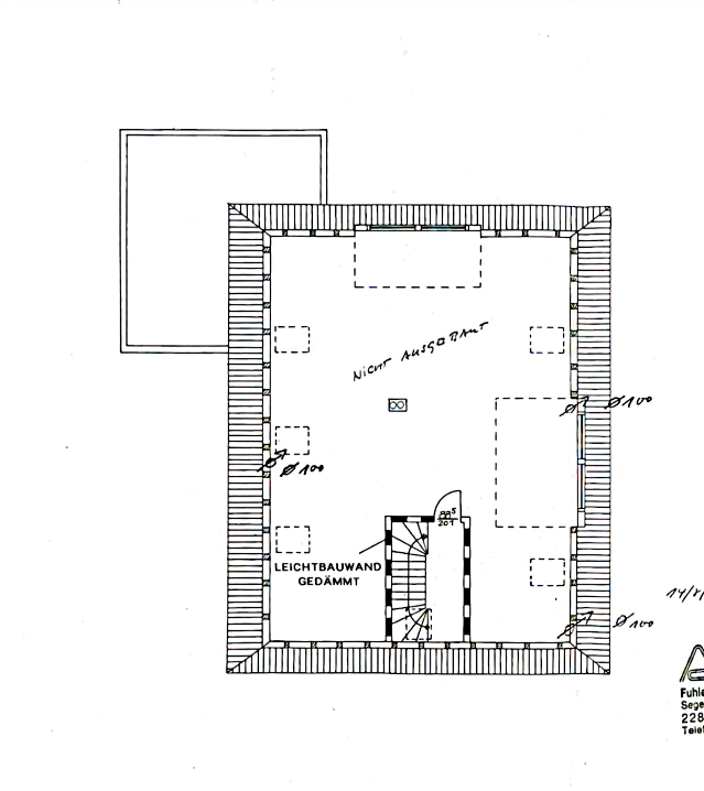
Das Haus wurde im Jahr 2000 errichtet und verfügt über eine Wohnfläche von ca. 138 m². Das Gebäude ist ca. 75% unterkellert und bietet damit zusätzliche Nutzflächen sowie vielfältige Nutzungsmöglichkeiten. Besonders praktisch ist der direkte Zugang vom Keller in die Garage, was kurze Wege und zusätzlichen Komfort bietet.
Die Immobilie befindet sich insgesamt in einem gebrauchten Zustand mit Renovierungsbedarf. Im Wohnbereich besteht ein leichter Renovierungsstau, insbesondere im Bereich der Oberflächen wie Malerarbeiten und teilweise Innenausstattung.
Darüber hinaus sind im Außenbereich Instandhaltungsmaßnahmen erforderlich. Die Dachunterstände sollten gestrichen oder teilweise erneuert werden. Weiterhin ist im Kellerbereich eine neue Kellerabdichtung herzustellen, da hier Feuchtigkeit festgestellt wurde.
Das großzügige Grundstück mit insgesamt ca. 2.909 m² Fläche bietet vielfältige Möglichkeiten für Garten, Freizeit oder eine individuelle Nutzung.
Die Immobilie eignet sich insbesondere für Käufer, die ein Haus mit großem Grundstück suchen und bereit sind, durch Renovierungsmaßnahmen zusätzlichen Wohnwert zu schaffen.
Die Immobilie befindet sich insgesamt in einem gebrauchten Zustand mit Renovierungsbedarf.
Im Wohnbereich besteht ein leichter Renovierungsstau, insbesondere bei Maler- und Schönheitsarbeiten.
Darüber hinaus sind im Außenbereich Instandhaltungsmaßnahmen wie folgt erforderlich:
- Dachunterstände sollten gestrichen oder teilweise erneuert werden
- Kellerabdichtung muss aufgrund vorhandener Feuchtigkeit erneuert werden
Eckdaten
- Objekttyp: Freistehendes Einfamilienhaus
- Baujahr: ca. 2000
- Wohnfläche: ca. 138 m² (Erdgeschoss)
- Dachgeschoss: Ausbaureserve
- Keller mit Zugang zur Garage
- Garage: vorhanden mit zusätzlichem Stauraum
- Grundstücksfläche: ca. 2.909 m²
- Heizung: Gasheizung mit Warmwasserbereitung
Mit entsprechenden Renovierungsmaßnahmen lässt sich das Objekt jedoch zu einem sehr attraktiven Wohnhaus mit großem Grundstück entwickeln.
Die angebotene Immobilie befindet sich in Norderstedt im Kreis Segeberg in Schleswig-Holstein und gehört zur Metropolregion Hamburg. Norderstedt ist eine große Mittelstadt mit rund 83.000 Einwohnern und zeichnet sich durch eine gute Infrastruktur sowie eine hohe Wohnqualität aus.
Die Stadt verfügt über eine sehr gute Anbindung an die Hansestadt Hamburg. Die Hamburger Innenstadt ist in etwa 30 Minuten erreichbar. Auch die Autobahn A7 ist in kurzer Entfernung erreichbar und ermöglicht eine schnelle überregionale Verkehrsanbindung.
Ansprechpartner
Telefax: +49 40 526 67 95
vermarktung@eggers.immobilien
Energieausweis (Bedarfsausweis)
123,43 kWh / (m²*a) Endenergiebedarf
123,43 kWh / (m²*a) Endenergiebedarf
123,43 kWh / (m²*a) Endenergiebedarf
Weitere Informationen
| Wesentlicher Energieträger | Gas |
| Energieausweis Ausstelldatum | 2026-03-10 |
| Energieausweis gültig bis | 2036-03-09 |
| Energieausweis Jahrgang | ab dem 1.5.2014 |
| Energieausweis Werteklasse | D |
| Energieausweis Baujahr | 2000 |
| Energieausweis Gebäudeart | Wohngebäude |
| Heizung | Zentralheizung, Fußbodenheizung |
| Befeuerung | Gas |
Ich bin damit einverstanden, dass mir Karten von Google angezeigt werden. Es gelten die Datenschutzbedingungen von Google (https://policies.google.com/privacy).
Ich bin einverstanden