Hochwertige Doppelhaushälfte - vermietet, energieeffizient, renditestark
Objektart
Adresse
Objektdaten
Informationen
Ausstattung
Details
Diese attraktive Doppelhaushälfte wurde in konventioneller Massivbauweise "Stein auf Stein" errichtet und überzeugt durch ihre hochwertige Verblendsteinfassade sowie die energieeffiziente Bauweise nach KfW-55-Standard (EnEV 2016).
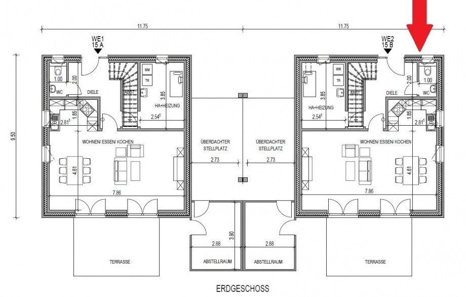
Die Immobilie verfügt über insgesamt 5 gut geschnittene Zimmer und ist modern sowie durchdacht ausgestattet. Der großzügige Wohn- und Essbereich mit offener Küche und Zugang zur sonnigen Süd-Terrasse bildet das Herzstück des Hauses. Dank der Kombination aus moderner Technik, energieeffizienter Bauweise und einer optimalen Raumaufteilung eignet sich das Objekt ideal für Familien.
Die Doppelhaushälfte ist derzeit zuverlässig vermietet und erzielt eine Jahresnettokaltmiete von € 22.200, womit sie eine attraktive und zukunftssichere Kapitalanlage darstellt.
Ausstattungsmerkmale & Highlights
- KfW-Effizienzhaus 55 - energieeffizient & nachhaltig
- Massivbauweise mit Verblendsteinfassade - langlebig & zeitlos
- 5 großzügige Zimmer - optimale Raumaufteilung
- Elektrische Außenrollläden (außer Gäste-WC, Technikraum, Dachflächenfenster)
- 3-fach-verglaste Kunststofffenster - außen quarzgrau, innen weiß
- Luft-Wasser-Wärmepumpe - umweltfreundliche Wärme- und Warmwasserversorgung
- Kontrollierte Be- und Entlüftungsanlage mit Wärmerückgewinnung
- Netzwerk- und Antennendosen (Cat-7) in allen Wohn- und Schlafräumen
- Vollbad mit bodengleicher Dusche im Dachgeschoss
- Gäste-WC mit Fenster im Erdgeschoss
- Wohn-/Essbereich mit offener Küche - ca. 41 m²
- Süd-Terrasse - ca. 18 m², sonnig & einladend
- Kinder- oder Arbeitszimmer - ca. 13, 14 und 15 m²
- Elternschlafzimmer - ca. 15 m²
- Zwei Stellplätze direkt am Haus
- Abstellkammer im Dachgeschoss
- Einbauküche inklusive
- Real geteiltes Doppelhaus - unabhängige Nutzung
- Attraktive Kapitalanlage - Jahresnettokaltmiete € 22.200
Die Neubau-Doppelhaushälften befinden sich in der Straße Zuckhut 15b in Sülfeld. Der Ort Sülfeld hat eine gute Infrastruktur. Vieles ist fußläufig zu erreichen. Es gibt einen modernen und großen Einkaufsmarkt, Bäckereien, eine Apotheke und eine Bankfiliale. Der Ort liegt, umgeben von viel Wald und Natur, verkehrsgünstig in der Nähe der Bundesstraße 432. Von hier aus ist es nicht mehr weit, um nach Norderstedt/Hamburg bzw. Richtung Bad Segeberg zu fahren. Es gibt einen Kindergarten und eine Grund- und Gemeinschaftsschule. Höhere Schulen sind bequem mit dem Schulbus zu erreichen.
Ansprechpartner
Telefax: +49 40 526 67 95
vermarktung@eggers.immobilien
Energieausweis (Bedarfsausweis)
25 kWh / (m²*a) Endenergiebedarf
25 kWh / (m²*a) Endenergiebedarf
25 kWh / (m²*a) Endenergiebedarf
Weitere Informationen
| Wesentlicher Energieträger | Elektroenergie, Alternative Energieträger |
| Energieausweis Ausstelldatum | 2021-08-18 |
| Energieausweis gültig bis | 2031-08-18 |
| Energieausweis Jahrgang | ab dem 1.5.2014 |
| Energieausweis Werteklasse | A+ |
| Energieausweis Baujahr | 2021 |
| Energieausweis Gebäudeart | Wohngebäude |
| Heizung | Zentralheizung, Fußbodenheizung |
| Befeuerung | Elektro, Alternativ |
Ich bin damit einverstanden, dass mir Karten von Google angezeigt werden. Es gelten die Datenschutzbedingungen von Google (https://policies.google.com/privacy).
Ich bin einverstanden